วอลดอร์ฟ แอสโทเรีย กรุงเทพ
Hospitality: Excellent Award
“The existing natural condition is well conserved. The planting selection that focuses on using the native species and arrange them with natural composition creates the unique identity of this project. The utilization of bioswales could support the ecosystem.”
(2019 Awards Jury)

“Rainforest Rediscovery”
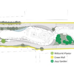
Magnolias Ratchadamri Boulevard is a mixed-use development including a super luxury condominium, an office and a five-star hotel managed by Waldorf Astoria Bangkok. Located on Ratchadamri Road, the project is in the central area of Bangkok, between Grand Hyatt Erawan Bangkok Hotel and Peninsula Tailors Bangkok Hotel. With a land area of 43x240 sq. m., the project needs a solution to deal with its narrow area.
The narrow area between 2 tall buildings creates a vibe resembling a mysterious and evergreen throughout a year, inviting visitors to explore and rediscovery the area.
The site area is surrounded by a street, leaving not much space between the road and the site boundary for landscape design. High green wall is introduced to transform the limited space into an evergreen forest-like area and also work as a vegetation screen against noise and air pollution from the public street.
Curve lines inspired by magnolia petals, beautiful and sweet, yet strong, are used in the landscape design, corresponding to the architectural design.


ชื่อโครงการ : วอลดอร์ฟ แอสโทเรีย กรุงเทพ
สถานที่ตั้ง : ราชดำริ กรุงเทพ
บริษัท / ผู้ออกแบบ : บริษัท ฉมา จำกัด
หัวหน้าโครงการ : นำชัย แสนสุภา
ภูมิสถาปนิกโครงการ : Witchawat wiriyakijja / Yoottapol samhansook / Tanee Sawasdee / La-ongdao Intana
ผู้ว่าจ้าง/เจ้าของโครงการ : แมกโนเลีย ควอลิตี้ ดีเวล็อปเม้นต์ คอร์ปอเรชั่น
ลิขสิทธิ์ภาพ/ช่างภาพ : Panoramic studio
ลักษณะโครงการ : โรงแรม
รายละเอียดโครงการ:
เนื่องจากพื้นที่โครงการมีหน้าแคบประมาณ 43 เมตร ยาว 240 เมตร อยู่ระหว่างโรงแรมสองแห่ง มีลักษณะคล้ายซอกระหว่างอาคารสูง การจัดภูมิทัศน์ของโครงการจึงเป็นการจัดการพื้นที่แคบ แนวคิดในการออกแบบคือป่าดิบชื้น (Rain Forest) ที่ลึกลับ เขียวชอุ่มตลอดปี เชื้อเชิญให้ผู้คนเข้ามาค้นหา (Rediscovery) พื้นที่โครงการโดยรอบจะถูกล้อมด้วยถนนรอบโครงการทำให้พื้นที่ของงานภูมิทัศน์ระหว่างถนนกับขอบพื้นที่มีความกว้างไม่มาก จึงสร้างงานภูมิทัศน์ที่ทำหน้าที่ screen และสร้างความรู้สึกโอบล้อม เป็นพื้นที่สีเขียวคล้ายป่าดิบชื้น ด้วยการใช้สวนแนวตั้ง (green wall) ที่มีความสูงมาก บริเวณริมถนนรอบโครงการนอกจากนั้น เส้นสายในโครงการยังสอดคล้องกับเส้นสายในงานสถาปัตยกรรม โดยส่วนใหญ่จะเป็นเส้นโค้งที่ได้รับแรงบันดาลใจมาจาก “กลีบดอกแมกโนเลีย ” ที่มีความสวยงามและอ่อนหวาน แต่แฝงไปด้วยความเข้มแข็ง
















































