March 08, 2022

โครงการบูรณะห้องสมุดเนียลสัน เฮย์ส

Public Space - Small Area: Excellent Award

“The design allows a variety of activities to thoroughly respond to the function and the context of the site. The functional space also well connects with the pathway. Landscape architecture design conforms with environmental conservation. A concrete example is how the project utilizes softscape to separate human activities from existing trees. The design of water retention and drainage system are creating a sustainable operation.”

(2019 Awards Jury)

Project Summary

The Neilson Hays Library has become a place for not only the book lovers but also the Bangrak neighbourhood and Bangkok community since its foundation in 1869. The neo-classical library building is located amongst the greenery fascinating people to come and spend their time in this place for reading the books in the library, enjoy having tea time at the café, and some private events – including weddings, corporate functions, product launch, and workshop.

In late 2016, with the building in obvious disrepair, the results of the survey from architectural restoration experts indicated visible damages were due to much deeper systemic problems, and the first major restoration of the library structure was critically needed. Also, the ground around the building as well.

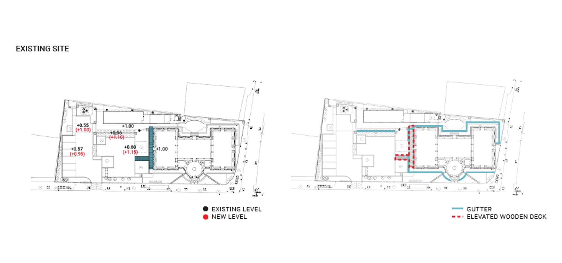
Through time, the streets surrounding the library have been paved over and over, resulting in level change between the build-up streets and the library area. As a result, in the rainy season, stormwater flew into the area. Neither the change of level, nor the functional difficulty to use the lawn with scattered concrete block paving, and the unnoticeable of the entrance of the site, are the challenges for the landscape team to be tackled.

The ground part was filled to raise the level up for the main functional areas which were the front court and the outdoor café area, and the parking lots with the integration of the proper drainage system around these areas. But this caused concern of the ground under the existing trees, which cannot be filled up to the new level, because the trees will eventually die if their roots are covered with the thick soil. Therefore, the lower ground then becomes the biotope and detention areas which can get the stormwater from the higher ground, where the water can seep directly to.

The front court, one of the main areas with lush big canopies of the old big trees, was designed to cater various activities. Originally, the paving pattern left spaces between each one grass to grow. However, the uneven floor was not suitable for walking and can be even unsafe. Additionally, some areas under the big trees are shady and too dark for grass to thrive. The redesigned of this area was to rearrange in the new pattern with reused concrete pavers to better serve different usages of the court and be more user-friendly and more functional spaces. The reused materials are cost-effective while maintaining the original vibe. To seamlessly connect the front garden and the library building, the elevated wooden deck was introduced for easily accessible for everyone.

The existing trees are all preserved, the old big trees namely, Flame tree and Tamanu tree, with the big canopies expand over the site, to screen sunlight and lower the micro-climate, filtering heat and air pollution, and creating an ideal space for getting relaxed all day long.

This privately owned public space provides a green space for the city, as well as a public space for the community where welcomes people with all background to engage in conversations about the literature and the arts.

ชื่อโครงการ : โครงการบูรณะห้องสมุดเนียลสัน เฮย์ส 
สถานที่ตั้ง : กรุงเทพฯ ประเทศไทย
บริษัท / ผู้ออกแบบ : บริษัท ฉมา จำกัด
หัวหน้าโครงการ : ประพันธ์ นภาวงศ์ดี
ภูมิสถาปนิกโครงการ : นภจร ศรีฉัตรสุวรรณ / ละอองดาว อินทนะ (นักออกแบบพืชพรรณ)
ผู้ว่าจ้าง/เจ้าของโครงการ : สมาคมห้องสมุดเนียลสัน เฮย์ส
ผู้รับเหมางานภูมิทัศน์ : บริษัท นาคานที จำกัด
ผู้รับเหมาหลัก : บริษัท ปุณณรักษ์ จำกัด
ลิขสิทธิ์ภาพ/ช่างภาพ : นภนต์     จตุรภุชพรพงศ์

หน่วยงาน/บุคคลอื่นๆที่ส่วนร่วมในผลงาน 
คุณนลิน วนาสิน / ประธานคณะกรรมการบริหารห้องสมุดเนียลสัน เฮย์ส 
คุณวทัญญู เทพหัตถี / บริษัท กุฎาคาร จำกัด
คุณยุวรัตน์ เหมะศิลปิน / สถาปนิกอนุรักษ์สถาปัตยกรรม 

ลักษณะโครงการ

พื้นที่ใช้ประโยชน์สาธารณะที่มีพื้นที่ไม่มากกว่า 1,000 ตร.ม. เป็นพื้นที่กิจกรรมที่ชุมชน

แนวคิดหลักของโครงการ

จากจุดเริ่มต้นของการบูรณะอาคารห้องสมุดซึ่งมีคุณค่าทางสถาปัตยกรรมกว่าร้อยปีนั้น ในการปรับปรุงภูมิทัศน์จึงคำนึงถึงการออกแบบที่ส่งเสริมอาคารให้ปรากฏชัดขึ้นเป็นสิ่งแรก เนื่องจากแต่ก่อนนั้นทัศนียภาพของอาคารถูกบดบังโดยต้นไม้ การเชื่อมต่อระหว่างพื้นที่ลานกับตัวอาคาร ถูกจำกัดการเข้าถึงโดยขั้นบันได การใช้งานบริเวณลานด้านหน้าอาคารที่ไม่สามารถทำได้สะดวกจากพื้นเดิมที่ไม่เรียบเสมอกัน เพราะทรุดโทรมตามสภาพและอายุการใช้งาน รวมถึงระดับของพื้นที่ลานใช้งานด้านหน้าอาคารและลานจอดรถที่มีระดับต่ำกว่าพื้นที่ถนนภายนอกทำให้เกิดน้ำท่วมในบางครั้ง สิ่งที่ทางทีมภูมิสถาปนิกทำ คือ การปรับเปลี่ยนรูปแบบของพื้นที่ให้สามารถรองรับการใช้งานได้มากขึ้น การเข้าถึงได้โดยทุกคน โดยเคารพบริบทเดิมของสถานที่ การเก็บต้นไม้เดิมไว้ทุกต้น รวมถึงนำวัสดุพื้นเดิมกลับมาใช้เพื่อช่วยประหยัดงบประมาณและรักษาบรรยากาศดั้งเดิมของสถานที่ไว้ เพื่อให้ห้องสมุดแห่งนี้ยังคงเป็นสถานที่แห่งความทรงจำ และเป็นพื้นที่ซึ่งสามารถสร้างคุณค่าต่อชุมชนและสิ่งแวดล้อมได้อีกด้วย

รายละเอียดโครงการ

ในส่วนงานภูมิสถาปัตยกรรม ทางทีมภูมิสถาปนิกได้เข้ามามีส่วนร่วมกับทางโครงการบูรณะห้องสมุดเนียลสัน เฮย์ส ระหว่างการบูรณะในส่วนของอาคารห้องสมุด ซึ่งถือเป็นการบูรณะครั้งใหญ่ครั้งที่ 2 เนื่องจากไม่สามารถซ่อมแซมและปรับปรุงทีละส่วนได้แล้ว เพราะจากการสำรวจอาคารที่มีอายุเกือบร้อยปีแห่งนี้ โดยทีมสถาปนิกผู้มีความเชี่ยวชาญด้านการบูรณะอาคารเก่า และสถาปนิกอนุรักษ์สถาปัตยกรรม พบว่ารอบตัวอาคารมีที่เก็บน้ำซึ่งมีปริมาณน้ำที่สะสมไว้มากเกินไม่สามารถระบายออกได้ รวมถึงพื้นที่ใช้งานโดยรอบอาคารมีสภาพที่ค่อนข้างทรุดโทรมตามกาลเวลาและรูปแบบการใช้งานของพื้นที่ซึ่งไม่สอดคล้องกัน รวมถึงระดับของพื้นที่ลานใช้งานด้านหน้าอาคารและลานจอดรถที่มีระดับต่ำกว่าพื้นที่ถนนภายนอกทำให้เกิดน้ำท่วมในบางครั้ง

พื้นที่โครงการมีขนาดรวม ประมาณ 1 ไร่ พื้นที่ส่วนงานปรับปรุงภูมิทัศน์ มีขนาดพื้นที่รวมประมาณ 800 ตร.ม. แบ่งออกเป็นส่วนลานด้านหน้าอาคาร ลานจอดรถ และพื้นที่ปลูกโดยรอบอาคาร

การปรับปรุงภูมิทัศน์จึงคำนึงถึงการออกแบบที่ส่งเสริมอาคารให้ปรากฏชัดขึ้นเป็นสิ่งแรก เนื่องจากแต่ก่อนนั้นทัศนียภาพของอาคารถูกบดบังโดยต้นไม้ การเชื่อมต่อระหว่างพื้นที่ลานกับตัวอาคาร ถูกจำกัดการเข้าถึงโดยขั้นบันได การใช้งานบริเวณลานด้านหน้าอาคารที่ไม่สามารถทำได้สะดวกจากพื้นเดิมที่ไม่เรียบเสมอกัน สิ่งที่ทางทีมภูมิสถาปนิกทำ คือ การปรับเปลี่ยนรูปแบบของพื้นที่ให้สามารถรองรับการใช้งานได้มากขึ้น การเข้าถึงได้โดยทุกคน โดยเคารพบริบทเดิมของสถานที่ การเก็บต้นไม้เดิมไว้ทุกต้น รวมถึงนำวัสดุพื้นเดิมกลับมาใช้เพื่อช่วยประหยัดงบประมาณและรักษาบรรยากาศดั้งเดิมของสถานที่ไว้

บริเวณลานด้านหน้าอาคาร และลานจอดรถถูกปรับระดับให้สูงขึ้นกว่าถนนภายนอกเล็กน้อย เพื่อให้สามารถใช้งานได้ทุกช่วงตลอดปี แต่ในขณะเดียวกันนั้น เนื่องจากในพื้นที่มีต้นไม้เดิม ได้แก่ ต้นหางนกยูงฝรั่ง และต้นสารภีทะเล ซึ่งมีขนาดใหญ่ สวยงามมาก และให้ร่มเงากับพื้นที่ลานด้านหน้าอาคารห้องสมุดมาเป็นเวลานานหลายสิบปี จึงเป็นหนึ่งในเกณฑ์การออกแบบของทีมภูมิสถาปนิกว่าจะไม่สามารถถมดินตามพื้นที่ลานที่ถูกยกขึ้นได้ หรือก่อสร้างสิ่งใดใกล้ๆ บริเวณรากต้นไม้ เนื่องจากอาจทำให้ต้นไม้ตายได้ จึงต้องรักษาระดับสภาพรอบต้นไม้ให้ได้ใกล้เคียงเดิมที่สุด ทำให้พื้นที่ปลูกมีลักษณะเป็นหลุมลงไป เนื่องจากมีระดับต่ำกว่าพื้นที่รอบข้าง ซึ่งเป็นพื้นที่ที่น้ำสามารถซึมผ่านลงดินได้ แต่มีสภาพเปรียบเป็นพื้นที่หน่วงน้ำให้กับลานที่ล้อมรอบอยู่ ในการเลือกใช้พืชพรรณส่วนของไม้พุ่มจึงต้องเลือกพืชที่ชอบน้ำและมีความทนทานต่อสภาพอากาศ เช่น ต้นกระดาด เฟิร์นข้าหลวง และหนวดปลาหมึกแคระ

วัสดุปูพื้นบริเวณลานเดิมซึ่งคือ แผ่นพื้นคอนกรีต จากที่รูปแบบการปูพื้นเดิมด้วยการเว้นระยะห่างระหว่างแผ่นเพื่อให้หญ้าสามารถขึ้นได้ แต่เนื่องจากพื้นมักเกิดเป็นร่องไม่สม่ำเสมอ รองรับการใช้งานได้ยาก ดังนั้นจึงได้ถูกนำมาจัดเรียงใหม่ หลังจากการปรับระดับพื้นที่ เพื่อให้สามารถรองรับกิจกรรมหรือการใช้งานได้มากยิ่งขึ้น และเว้นพื้นที่บริเวณใต้ร่มไม้บางช่วงเพื่อปลูกต้นหนวดปลาดุกแคระ ซึ่งเป็นพืชทนร่ม เพื่อทำให้พื้นที่ส่วนลานดูเชื่อมต่อกับพื้นที่ปลูกไม้พุ่มที่ติดกัน ลดทอนความแข็งของพื้นที่ลานที่ถูกจัดเรียงใหม่

ในการปรับระดับของพื้นที่ส่งผลให้ส่วนของพื้นที่ลานกับอาคารห้องสมุดมีระดับใกล้เคียงกัน แต่มีพื้นที่ปลูกบริเวณต้นหางนกยูงฝรั่งคั่นกลางอยู่ระหว่างพื้นที่ ทางเดินไม้จึงถูกออกแบบเพื่อเชื่อมระหว่างสองพื้นที่นี้เข้าด้วยกัน โดยมีลักษณะเป็นทางลาดเพื่อถ่ายระดับความสูงจากลานด้านหน้าเข้าสู่ตัวอาคาร เพื่อให้สามารถเข้าถึงได้ทุกคน ไม่ว่าจะเป็นรถเข็นเด็ก วีลแชร์ และผู้สูงวัยยังเข้าถึงอาคารได้โดยสะดวกอีกด้วย โดยทางเดินไม้ถูกออกแบบให้ขนานไปตามรูปด้านอาคาร เพื่อเสริมความเด่นชัดของการเข้าถึงอาคารห้องสมุด และสามารถเชื่อมต่อไปยังส่วนคาเฟ่และบริเวณด้านข้างห้องสมุดได้ นอกจากนั้นการยกพื้นไม้เพื่อให้สามารถซ่อนแนวระบายน้ำที่อยู่บริเวณด้านล่างได้

แนวความคิดในการออกแบบพืชพรรณ ที่นอกจากจะทำอย่างไรให้พื้นที่มีความร่มรื่นยังคงอยู่จากต้นไม้เดิม ยังเสริมให้ดูน่าสนใจโดยไม้พุ่มบริเวณใต้ต้นไม้เดิมที่ได้รับร่มเงา จึงเลือกพืชพรรณที่สามารถทนร่มได้ และแทรกด้วยไม้ดอกที่สามารถออกดอกได้ในที่มีแสงรำไร เช่น เข็มม่วง พัดนางชี บุษบาฮาวาย เป็นต้น ซึ่งมีสีสันของดอกและใบที่มีความน่าสนใจ อยู่ร่วมกับต้นลีลาวดีเดิม และแซมด้วยไม้ดอกหอม เช่น พุดซ้อน เพื่อสร้างบรรยากาศที่ผ่อนคลายบริเวณที่นั่งโดยรอบ โดยพืชพรรณที่เลือกใช้เกือบทั้งหมดเป็นชนิดที่ดูแลรักษาน้อย ค่อนข้างทนทานต่อสภาพแวดล้อม จึงช่วยลดเวลา และค่าใช้จ่ายในการดูแลรักษาของโครงการได้อีกด้วย